4 Habitación(es)
2 Baño(s)
152 m2
Entrada: Dic 24, 2025
4 Habitación(es)
2 Baño(s)
152 m2
Piso
Tipo de Propiedad
1975
Año de Construcción
- (Parking)
Garaje
-- m2
m2 Útiles
- €
Precio/m2
3ª
Plantas
GRAN VIVIENDA CÉNTRICA CON VISTAS A EVENTOS DE INTERÉS TURÍSTICO
Amplia vivienda situada en la emblemática calle Alfonso XIII, una de las principales arterias del centro de Orihuela, con un destacado papel histórico, urbano y cultural en la vida de la ciudad.
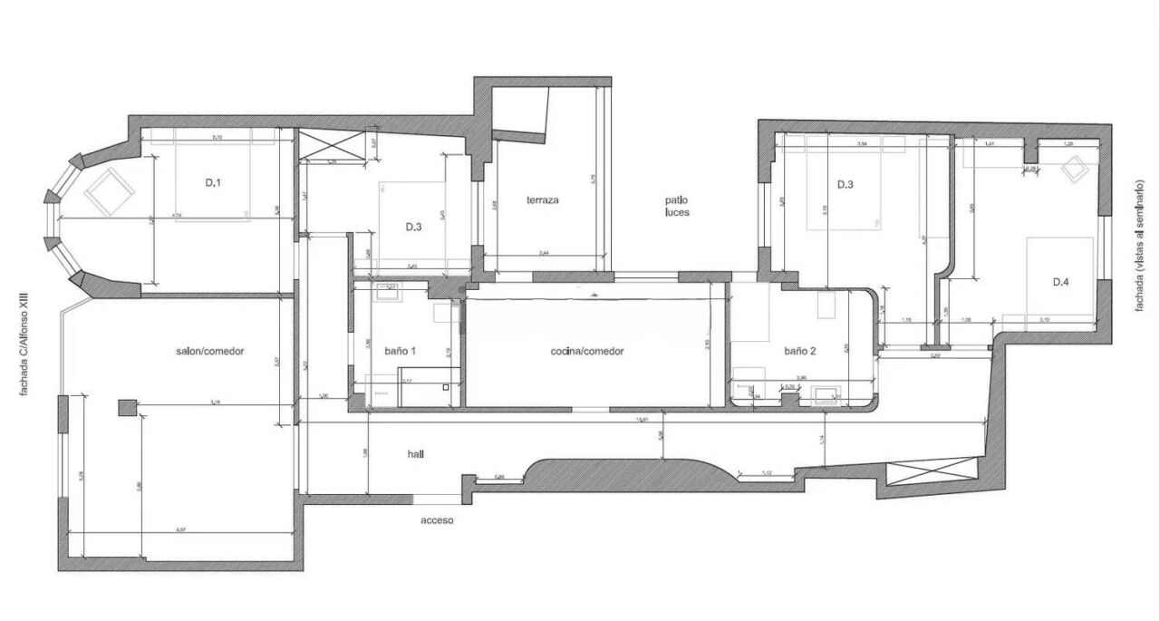
La vivienda cuenta con una superficie real de 152 m2, ofreciendo espacios amplios y una distribución cómoda, con estancias que permiten adaptarse fácilmente a distintos estilos de vida.
UNA VIVIENDA CON POTENCIAL
La vivienda necesita una reforma general para adaptarse a los estándares actuales de confort y diseño, lo que supone una excelente oportunidad para personalizarla completamente según las necesidades de una familia o para desarrollar un proyecto de inversión en una ubicación con alta demanda. La distribución y la ubicación céntrica permiten múltiples opciones: vivienda familiar amplia, inversión patrimonial, alquiler de larga duración o proyecto vinculado al atractivo turístico de la zona.
DISTRIBUCIÓN
Cuatro dormitorios. Salón – comedor . comedor. Cocina con lavadero. Dos baños completos. Terraza con vistas a la zona comunitaria. Balcón tipo mirador.
Desde el salón-comedor y el dormitorio principal, se disfrutan vistas directas a la calle Alfonso XIII, permitiendo contemplar desde casa las procesiones de Semana Santa de Orihuela(Interés Turístico Internacional)y los desfiles de Moros Y Cristianos, un privilegio único en la ciudad.
UBICACIÓN PRIVILEGIADA
Con todos los servicios a pocos pasos: Supermercados, farmacias, centros médicos, colegios e institutos, restaurantes y cafeterías, comercios tradicionales, transporte publico, zonas culturales y administrativas. Todo ello sin necesidad de utilizar vehículo.
Una oportunidad poco habitual por superficie, ubicación y precio en el centro de Orihuela, con un amplio margen de mejora y revalorización.
Desde La Pirámide acompañamos a nuestros clientes en todo el proceso de compra.
Trabajamos con asesores financieros especializados que analizan cada caso de forma individual para conseguir las mejores condiciones hipotecarías posibles, adaptadas a cada perfil y proyecto.
Un servicio pensado para que la compra sea segura, clara y sin sorpresas, tanto si es tu futura vivienda como si se trata de una inversión.
Ponte en contacto con La Pirámide y descubre todo el potencial de esta vivienda. Estaremos encantados de ampliarte la información y acompañarte en cada paso.
Características
Aire acondicionado
Calefacción Gas natural
Cert. Energético: En tramite
Ascensor








































